Sicherheitsdesign für Öltanker und Klassifizierung von Gefahrenbereichen
Sie sind hier: Heim » Nachricht » Öltanker » Sicherheitsdesign für Öltanker und Klassifizierung von Gefahrenbereichen

Sicherheitsdesign für Öltanker und Klassifizierung von Gefahrenbereichen

Anzahl Durchsuchen:0     Autor:Site Editor     veröffentlichen Zeit: 2024-01-05      Herkunft:Powered

erkundigen

facebook sharing button
twitter sharing button
line sharing button
wechat sharing button
linkedin sharing button
pinterest sharing button
whatsapp sharing button
sharethis sharing button
Sicherheitsdesign für Öltanker und Klassifizierung von Gefahrenbereichen


Öltanker sind Schiffe, die auf den Transport von flüssigen Massengütern spezialisiert sind. Bei den Ladungen handelt es sich hauptsächlich um den Transport von Rohöl und Erdölprodukten als Massengut mit Flammpunkten von 60 °C und darunter.Gemäß IEC-60092-502 besteht bei Schiffen, die Ölprodukte mit einem Flammpunkt unter 60 °C transportieren, eine höhere Gefahr, und die Spezifikation enthält detailliertere Anforderungen für die Einteilung des Gefahrenbereichs, und alle elektrischen Geräte im Gefahrenbereich müssen den entsprechenden Explosionsanforderungen entsprechen -Beweisanforderungen.Die Gefahrenbereichsklassifizierung von Öltanker ist ein sehr wichtiger Teil ihres Sicherheitsdesigns.


Öltanker-9


Grundsätze der Gefahrenbereichsklassifizierung für Öltanker

Die Einstufung von Gefahrenbereichen für Öltanker entspricht hauptsächlich IEC-60092-502 für Flüssigfrachtschiffe, die brennbare Flüssigkeiten mit einem Flammpunkt von nicht mehr als 60 °C befördern.Es unterteilt die Gefahrenbereiche in Zone 0, Zone 1 und Zone 2, wobei Zone 0 die gefährlichste und Zone 2 die geringste Gefahr darstellt.Frachträume, Öl- und Wassertanks, alle Druck-, Vakuum- oder anderen Belüftungssysteme im selben Bereich wie die Frachträume sowie Innenräume, die Ladung oder Rohrleitungen enthalten, sowie Geräte, die brennbare Gase oder Dämpfe handhaben, werden alle als Zone 0 eingestuft.


Die Definition von Zone 1 ist relativ komplex und umfasst Folgendes: a) geschlossene Räumlichkeiten unmittelbar neben den Tanks für flüssige Ladung;b) Abteile, in denen Ladeschläuche gelagert werden, sowie geschlossene und halbgeschlossene Räume mit Ladeleitungen;und c) Bereiche neben Luken, Gas- oder Dampfauslässen, Ladungsabgabeventilen, Ladungsrohrflanschen sowie Druck- und Vakuumventilen in den Flüssigkeitsladetanks.2 kann einfach als Erweiterung von Zone 1 verstanden werden, z. B. Räumlichkeiten, Eingänge, Ausgänge sowie Lüftungs- und Luftöffnungen der Zone 1.Die äußere Erweiterung von Zone 1 an der Grenze des offenen Deckbereichs, wie Ein- und Ausgänge, Belüftung und Entlüftungsöffnungen.Darüber hinaus gilt gemäß den Merkmalen der offenen Deckstruktur der Laderaumbereich mit „ausgedrehtem“ Knochenmaterial bis zu einer Höhe von 2,4 Metern über dem Deck als Zone 1 und das Deck mit „ausgedrehtem“ „Knochenmaterial bis zu einer Höhe von 2,4 Metern über Deck gilt als Zone 2.


Klassifizierungstabelle für Gefahrenbereiche von Öltankern


Aufbau und Wirkung verschiedener Öffnungsarten

Die Eröffnungen von Öltanker werden hauptsächlich in die folgenden drei Arten unterteilt: erstens die Öffnungen für den Personalzugang und den täglichen Gebrauch, wie z. B. Schachtdeckel, Lukendeckel, Türen, Fenster und Waschlukendeckel;zweitens die Kabinenbelüftung, wie natürliche Belüftung, mechanische Belüftung, Überdruckbelüftung;Drittens das atmungsaktive System, wie Luftschläuche, Bathymetrieschläuche, Hochdruckentlastungsventile, atmungsaktive Masten und Vakuumauslöser.Die erste Art der Öffnung muss den Nutzungsanforderungen der Besatzung gerecht werden und den Auswirkungen von Gefahrenbereichen gebührend Rechnung tragen. Die Diskussion konzentriert sich hier auf die Anordnung und die Auswirkungen von Lukenbelüftung und speziellen atmungsaktiven Systemen.


Durch eine angemessene und wirksame Belüftung kann die Ansammlung brennbarer Gase, meist in Form von Zuluft und Abluft, verhindert werden.Für die Belüftung gefährlicher Orte sollte sie erstens weit von der Belüftung sicherer Orte entfernt sein.Zweitens sollte der Lufteinlass gefährlicher Orte so weit wie möglich im sicheren Bereich liegen. Wenn dies wirklich unvermeidbar ist, muss rechtzeitig Rücksprache mit der Klassifizierungsgesellschaft gehalten werden.Schließlich darf der Luftauslass nicht im gefährlicheren Bereich angeordnet werden, andernfalls müsste die Gefahrenstufe erhöht werden.Unter Berücksichtigung der Belüftungsanordnung des Pumpenraums eines Öltanker Beispielsweise grenzt der Pumpenraum an den Ladeöltank eines Bereichs. Aufgrund der Faktoren des Personalbetriebs ist dieser Bereich kein inerter Bereich, daher ist die Belüftungsumgebung des Pumpenraums besonders wichtig.Der Pumpenraum steht dem Pumpen (30-mal pro Stunde) zur Belüftung im Weg, der Lufteinlass und -auslass des Pumpenraums sollte so weit wie möglich von anderen Gefahrenquellen entfernt sein und die beiden dürfen sich nicht gegenseitig beeinflussen.Der Lufteinlass muss in einem sicheren Bereich liegen, laut Spezifikation sind aber auch 3 Meter rund um den Lufteinlass der Pumpenkammer ein Gefahrenbereich, der bei der Konstruktion berücksichtigt werden muss.


Belüftung der Ladepumpenräume


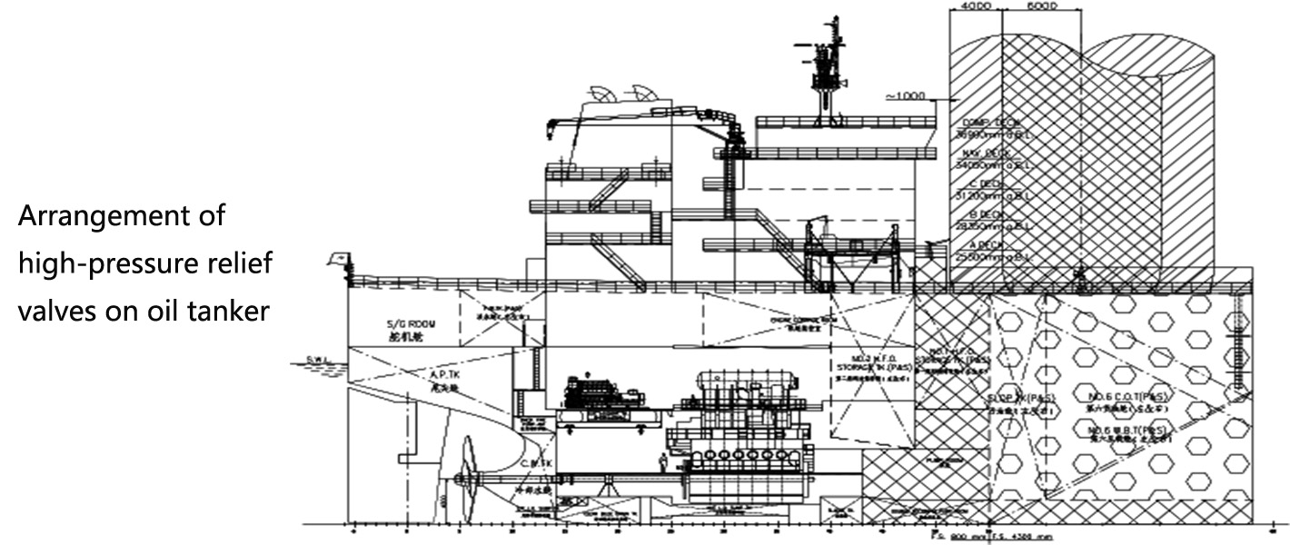
Hochdruck-Entlüftungsventile, Entlüftungsmasten und Vakuumauslöser in Frachträumen sind spezielle Entlüftungsvorrichtungen Öltanker.Diese Geräte geben Öl und Gas in die Außenluft ab, wenn der Druck des Öls und Gases im Frachtraum zu hoch ist. Deshalb hat die IEC auch die strengsten Grenzwerte für die Gefahrenbereiche solcher Geräte festgelegt.Der Bereich um das Entlüftungsrohr für flüssige Ladung, der eine große Menge Gas oder Dampfmischung liefert, die beim Umschlag der Ladung, beim Ballast oder beim Ausstoßen von Gas aus dem Tank für flüssige Ladung entsteht, der vertikale Zylinder mit unbegrenzter Höhe und einem Radius von 6 Metern nach oben vom Entlüfter Rohr und der offene Deckbereich innerhalb einer Halbkugel mit einem Radius von 6 Metern nach unten vom Entlüftungsrohr oder der halbgeschlossene Bereich des offenen Decks gehören zur Zone 1, und die 4 Meter außerhalb von Zone 1 gehören zur Zone 2 , wie in Abb. Vereinfacht ausgedrückt, ist ihr Einflussbereich ein Zylinder mit einem Radius von 10 Metern und einer unbegrenzten Höhe.Bei der Positionierung der Laderaumventilatoren sollten die folgenden Faktoren berücksichtigt werden: Erstens: Abstand zum Aufbau halten;Zweitens: Vermeiden Sie die Belüftung des Decklagerraums im Frachtraumbereich und des Deckscheinwerfermastes.Drittens: Halten Sie einen Abstand von mindestens 10 Metern zur Tür des Bowman-Lagerraums ein.


Anordnung von Hochdruck-Entlastungsventilen auf einem Öltanker


Conclude

Für die Gestaltung von ÖltankerExplosionsschutz ist ein wichtiger Teil des Sicherheitsdesigns. Wenn das Design nicht ordnungsgemäß ist, birgt es große Gefahren für die zukünftige Verwendung.Designer sollten auf die Klassifizierung gefährlicher Bereiche des Öltankers achten und auf die Koordination verschiedener Parteien im Designprozess achten, damit alle Arten von Öffnungen, Belüftung, Luft und Kabinenanordnung des Öltanker kann die Vorschriften und Normen einhalten. Qinhai verbessert ständig sein internes Managementniveau und legt dabei den Schwerpunkt auf Qualitätskontrolle und Prozessmanagement. Wir haben das von der China Classification Society ausgestellte CCS-Qualitätsmanagementzertifikat erhalten und die Zertifizierung und Umweltverträglichkeitsprüfung sowie die Akzeptanz durch Regierungsbehörden bestanden. In den letzten Jahren hat das Unternehmen die Anforderungen erfüllt mit dem nationalen strategischen Einsatz und den Anforderungen der Informationisierung und intelligenten Entwicklung der Schiffsindustrie. Fördern Sie die „Integration der beiden“ und setzen Sie weiterhin Produktionsautomatisierung und intelligente Fertigung um. Wir verfügen über mehrere automatische Montage- und halbautomatische Systeme Fertigungslinien.

PRODUKTKATEGORIE

Zufällige Produkte